- PEB Non Soumis au DPE
Description
Situé dans le quartier des Guillemins au pied de l'autoroute E40, ce rez-de-chaussée commercial de 56 m² fait partie d'un immeuble de 4 étages.
Il offre une belle situation grâce à la proximité de divers commerces , d'écoles, d'hôtels et des transports en commun.
Rez-de-chaussée commercial pouvant être transformé en appartement
En bon état, ce rez-de-chaussée peut être agencé de plusieurs manières selon vos besoins et à déjà été utilisé en bureau, salon de tatouages et salon de coiffure.
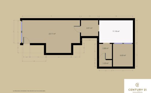
Il dispose d'un espace commercial, d'un espace cuisine, d'une réserve, d'un wc, de 2 dégagements et d'une cave.
Chauffage central au gaz individuel, électricité conforme, système d'alarme et double vitrage PVC sont certains avantages déjà présents sur les lieux.
Autre avantage intéressant: le bien dispose d'un permis d'urbanisme permettant de transformer l'espace en un appartement une chambre avec cour.
Venez découvrir cette opportunité avec nous sans tarder
Détails du bien
| Général | |
| Disponible le | À l'acte |
| État du bâtiment | Bon état |
| Nombre de façades | 2 |
| Environnement | Ville |
| Intérieur | |
| Surface habitable | 56 m² |
| Espace commercial | Oui |
| Réserve | Oui |
| Cuisne | Oui |
| Aménagement cuisine | Meublée |
| Toilettes | 1 |
| Cave | Oui |
| Financier | |
| Prix de vente demandé | 120 000 € |
| Revenu cadastral | 1078 € |
Rez commercial pouvant être transformé en appartement à Liège
Liège
Ce bien vous est proposé par

Werner Effertz
IPI 502082
Place du Parc 87
4000 Liège


















