- PEB Non Soumis au DPE
Description
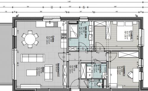
A deux pas du bois de la Vecquée et à proximité de toutes infrastructures urbaines, dans une résidence en cours de construction, appartement 2 chambres de 94,50m² vous proposant une terrasse de 18m² ainsi qu'un emplacement de parking intérieur et une cave.
Chaque bien aux finitions de qualité est équipé d'une cuisine (bon à valoir de 7 000€ T.V.A.C.) et d'une salle-de-bains.
Possibilité d'acquérir un garage et/ou emplacement extérieur en supplément.
Un produit de base est proposé, vous aurez le choix pour les finitions de parachèvement (carrelage, sanitaires, portes intérieures).
260 500€ hors frais et H.T.V.A.
Détails du bien
| Général | |
| Disponible le | À la livraison |
| Nombre d'étages | 2 |
| État du bâtiment | Neuf |
| Nombre de façades | 4 |
| Parking intérieurOui | Oui |
| Parking extérieur | Oui |
| Environnement | Zone habitat |
| Distance école | 900 m |
| Distance commerce | 120 m |
| Intérieur | |
| Surface habitable | 94,50 m² |
| Living | Oui |
| Surface Living | 24 m² |
| Surface Cuisne | 9,50 m² |
| Aménagement cuisine | Bon à valoir de 7000€ |
| Chambres | 2 |
| Surface chambre 1 | 13 m² |
| Surface chambre 2 | 11 m² |
| Salles de bain | 1 |
| Toilettes | 1 |
| Cave | Oui |
| Extérieur | |
| Surface Terrasse | 18 m² |
| Prescriptions Urbanistiques | |
| Permis de bâtir obtenu | Oui |
| Affectation urbanistique la plus récente sur base des dénominations utilisées dans le registre des plans | Zone d'habitat (résidentiel, urbain ou rural) |
| Droit de préemption plan d'exécution spatial | Non communiqué |
| Citation pour infraction urbanistique | Non communiqué |
| Financier | |
| Prix de vente demandé | 260 500 € |
| Prix demandé hors droits d'enregistrement et hors frais de notaire | |
Appartement 2 chambres à vendre à Seraing
Seraing
Ce bien vous est proposé par

Gaëtan Dispa
IPI 503079
Place Lucien Molitor 1A/01
4681 Hermalle-Sous-Argenteau






