- PEB G
- E spec : 1265
- E totale : 77020
- N° PEB : 20230302031636
Description
Faire offre à partir de 95 000 euros
Maison 3 façades au centre de Vaux-s-Chèvremont
Située dans une paisible voie sans issue à deux pas du centre de Vaux-sous-Chèvremont, cette habitation vous offre un cadre des plus apaisant. Malgré cette tranquillité, toutes les commodités sont accessibles aisément. Différents commerces, une école fondamentale et une ligne de bus vers Liège sont tout proches de l’habitation. Ayant été inondé en juillet 2021, le village est en plein renouveau et cette maison n’attend qu’une chose : faire partie de cette dynamique positive.
Maison 1 chambre avec jardin à Chaudfontaine
Cette maison trois façades de plein pied dispose d’une pièce de vie de 18m² reliée à une cuisine. Une chambre et une salle de bains sont également présentes. On retrouve aussi à l’extérieur une véranda et un jardin. Caves et buanderie en sous-sol, idéal pour le rangement. Touchée par les inondations de 2021, cette maison nécessite des rénovations pour retrouver son plein potentiel et être parfaitement à votre goût.
Le bâtiment pourrait être rehaussé à hauteur des bâtiments voisins.
Ce bien est idéal pour une personne cherchant à couler des jours paisibles dans un cadre reposant. Il peut également s’avérer intéressant pour un investissement. Si ce bien a attiré votre attention, ne perdez pas plus de temps et prenez rendez-vous pour le visiter !
Détails du bien
| Général | |
| Disponible le | À l'acte |
| État du bâtiment | à rénover |
| Nombre de façades | 4 |
| Parking intérieur | 1 |
| Intérieur | |
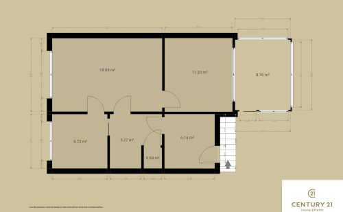
| Surface habitable | 70 m² |
| Living | Oui |
| Surface Living | 18 m² |
| Surface cuisine | 7 m² |
| Aménagement cuisine | Néant |
| Chambres | 1 |
| Surface chambre 1 | 11 m² |
| Salles de bain | 1 |
| Toilettes | 1 |
| Cave | Oui |
| Extérieur | |
| Surface du terrain | 250 m² |
| Jardin | Oui |
| Surface Jardin | 60 m² |
| Prescriptions Urbanistiques | |
| Affectation urbanistique la plus récente sur base des dénominations utilisées dans le registre des plans | Zone d'habitat (résidentiel, urbain ou rural) |
| Financier | |
| Prix de vente demandé | 140 000 € |
| Revenu cadastral | 371 € |
Maison 3 façades au centre de Vaux-s-Chèvremont
Vaux s/Chèvremont
Ce bien vous est proposé par

Werner Effertz
IPI 502082
Place du Parc 87
4000 Liège




















